Popis
Spodní skříňka od 450 mm
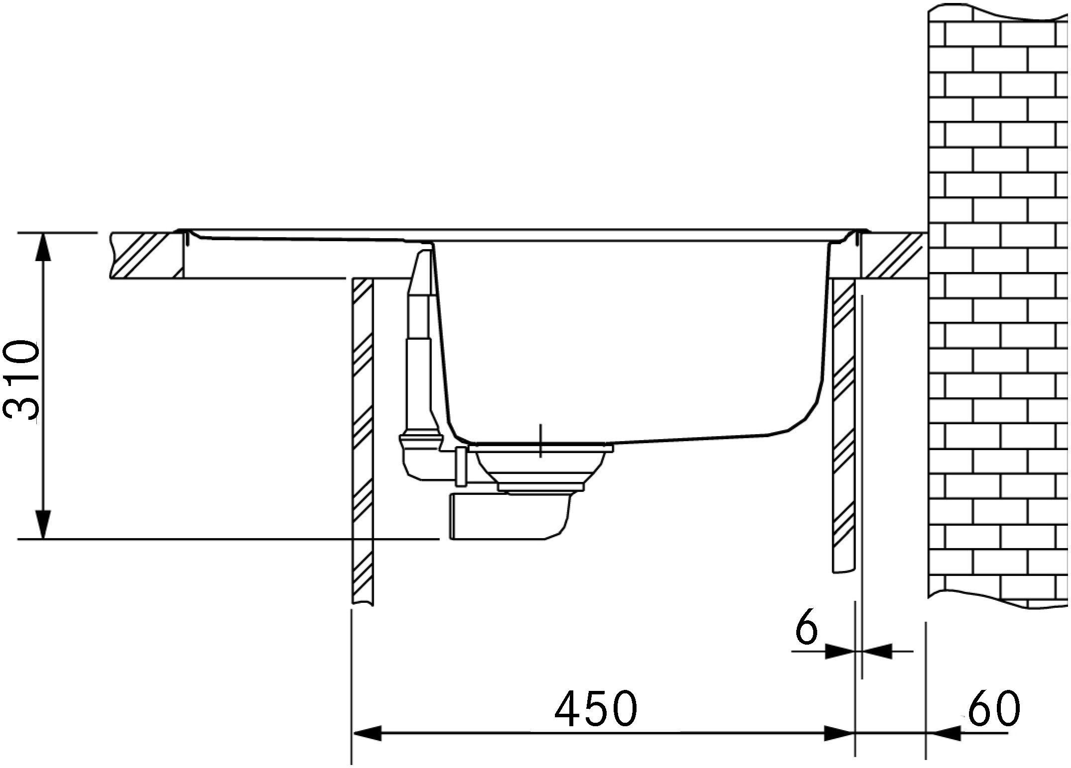
Rozměry: 620 × 500 mm
Výřez: 600 × 480 mm (Rádius 20 mm)
Dřez: 340 × 420 × 200 mm
Cena zahrnuje:
Sítkový ventil 3 1/2“ s přepadem
Sifon pro úsporu místa 6/4“ s odbočkou na myčku nádobí
4 Místa pro vyvrtání otvoru
Možnost umístit dávkovač saponátu
Pozor! Umístění dávkovače do skříňky od 600 mm
Odkapávací plocha: Reverzibilní
Pozor! Baterie je umístěna ve vyspádované odkapávací ploše a je mírně nakloněna.
POZOR – Důležitá informace
Otvory do Fragranitových dřezů se již NEVYRÁŽÍ, ale VRTAJÍ
FRÉZKOU, která je součástí dodávky dřezu.
Z tohoto důvodu již na dřezu nejsou nalepeny „terčíky“, které
dříve určovaly pozici, kde vyrážet otvor.
Otvory se vrtají ze spodní strany dřezu dle připojeného návodu.
Pokud vám bude dodán dřez bez frézky a s označenými otvory, jedná
se o dřez vyrobený před touto změnou.
Prosíme, použijte na vyvrtání otvoru frézku z jiného dřezu
(frézka není jen na jednorázové použití), případně ještě
můžete otvory vyrazit starým způsobem (nedoporučujeme).
Reklamace poškození dřezů „bez terčíků“ vyrážením otvorů
nebude uznána.
Video návod zde: YouTube https://www.youtube.com/watch?v=tUjnin4Hs0o






